CASE 085 / PLAN C
SHIBUYA 渋谷
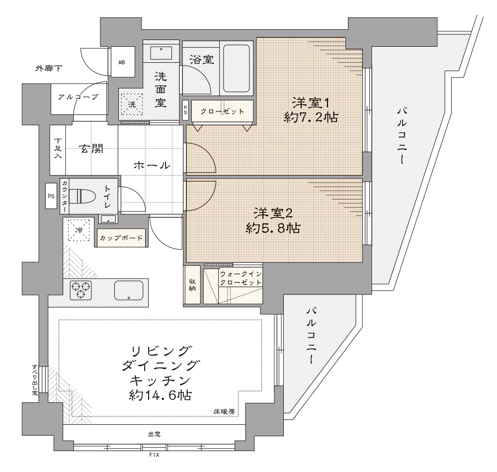
〈物件概要〉
〈リノベーション内容〉

グローバルベイス株式会社
[ 本社 ]
〒150-0031
東京都渋谷区桜丘町3番2号
渋谷サクラステージ SAKURAタワー6F
TEL:03-6416-4535
FAX:03-6455-0290
[ リノベーションラウンジ ]
〒150-0002
東京都渋谷区渋谷2-15-1
渋谷クロスタワー2F
TEL:03-5766-5100
FAX:03-5766-5511
[ MYRENO OSAKA ]
〒530-0057
大阪府大阪市北区曾根崎1丁目1−2 JRWD梅新 1F
TEL:06-6364-8600
FAX:06-6364-8611