駒場パーク・ホームズ 404号室|東京都目黒区
物件の価値を磨き上げた
リノベーション住宅
リノベーション住宅
駒場パーク・ホームズ 404号室
オープンルーム
価格15,990万円
月額ローンのシミュレーション
- ビッグターミナル『渋谷』が生活圏
- ユナイテッドアローズ社監修リノベーション
- 4階部分×南西向き 陽当たり・眺望良好
- 所在地 : 東京都目黒区駒場1丁目1-16
- 交通 : 京王井の頭線『駒場東大前』駅徒歩8分
京王井の頭線『神泉』駅徒歩8分
京王井の頭線『渋谷』駅徒歩13分
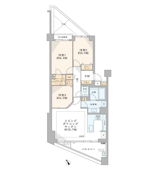
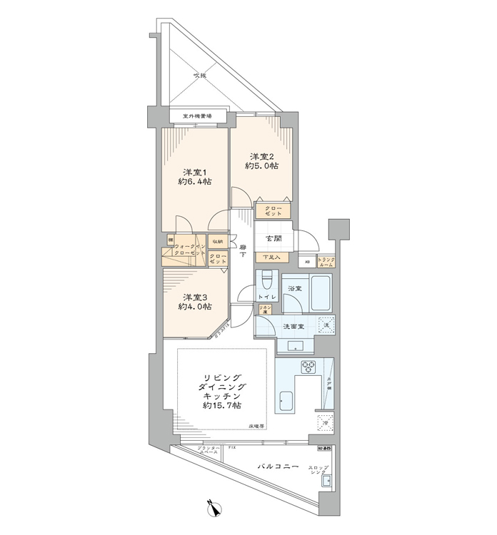
東急田園都市線『池尻大橋』駅徒歩12分 - 間取り : 3LDK+WIC
- 専有面積 : 71.27 ㎡
当物件を
スマホで
チェック!!
- 2駅利用可能
- CATV導入済み
- オートロック
- トイレ新規交換
- ペット飼育可
- 光ファイバー導入済
(共用部まで) - 公園至近
- 宅配ボックス
- 浴室換気乾燥機
- 眺望良好
- 買物便利
- 食器洗い機
- 駐車場
- 駐輪場
オープンルーム
開催中
開催中
【開催日時】1/17(土)、1/18(日)10:00~18:00 ※予約可能枠として11:00~、13:00~、15:00~、17:00~がございます。
ご希望の方は、ビデオ通話での内見が可能です。
自宅からバーチャル内覧会を開催中です。
オンラインで物件をご案内します。
オンラインで物件をご案内します。
お電話での問い合わせ(10:00-19:00)
物件概要
リノベーション内容
- 構造鉄筋コンクリート造地下1階地上8階建4階部分
- 間取り3LDK+WIC
- 専有面積71.27㎡(壁芯)
- バルコニー面積9.96 ㎡
- 築年月2001(平成13)年8月
- 総戸数40戸
- 土地権利所有権
- 用途地域第一種中高層住居専用地域
- 現況空室
- 引渡日即可
- 駐車場空有(26,000円~30,000/月)
- ペット飼育可(規約による制限有)
- 事務所使用不可
- 管理費9,600円/月
- 修繕積立金29,220円/月
- 管理形態全部委託管理(日勤)
- 管理会社三井不動産レジデンシャルサービス
- 施工会社三井建設㈱
- 旧分譲会社三井不動産㈱
- 設備都市ガス・公営水道・本下水・EV・オートロック・宅配ボックス
- 備考駐輪場:空有(500円/月)
バイク置場:空有(1,000円~2,000円/月)
インターネット(テンフィートライト)
CATV(イッツコミュニケーションズ)
修繕積立金総額:92,081,957円(2025年1月現在)
固定資産税・都市計画税:154,008円(2024年度概算)
そ の 他 : 2,100円/月(インターネット料) - 修繕履歴2023年 屋上防水工事・鉄部塗装工事
2022年 機械式駐車施設・塗装工事
- フローリング新規貼替
- 壁・天井クロス新規貼替
- 給湯管新規交換(専有部)
- 建具・玄関収納等新規交換
- オリジナル洗面化粧台新規交換
- TOTO製洗浄便座付トイレ新規交換
- LIXIL製ユニットバス新規交換(浴室換気乾燥機付)
- オリジナルシステムキッチン新規交換(食器洗い機付)
- 照明器具新規設置
- エアコン1基新規設置
- 給湯器新規交換(追焚式)…等
Google Maps Loading...
- 所在地 : 東京都目黒区駒場1丁目1-16
- 交通 : 京王井の頭線『駒場東大前』駅徒歩8分
京王井の頭線『神泉』駅徒歩8分
京王井の頭線『渋谷』駅徒歩13分
東急田園都市線『池尻大橋』駅徒歩12分
自宅からバーチャル内覧会を開催中です。
オンラインで物件をご案内します。
オンラインで物件をご案内します。
お電話での問い合わせ(10:00-19:00)











































