BrilliaTower上野池之端 3205号室|東京都台東区
物件の価値を磨き上げた
リノベーション住宅
リノベーション住宅
BrilliaTower上野池之端 3205号室
オープンルーム
価格29,990万円
月額ローンのシミュレーション
オープンルーム
開催中
開催中
【開催日時】1/17(土)、1/18(日)10:00~18:00 ※予約可能枠として11:00~、13:00~、15:00~、17:00~がございます。
ご希望の方は、ビデオ通話での内見が可能です。
自宅からバーチャル内覧会を開催中です。
オンラインで物件をご案内します。
オンラインで物件をご案内します。
お電話での問い合わせ(10:00-19:00)
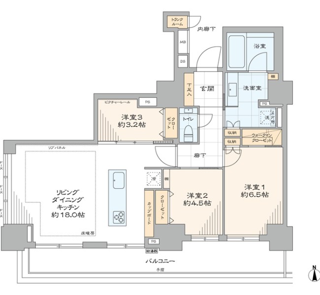
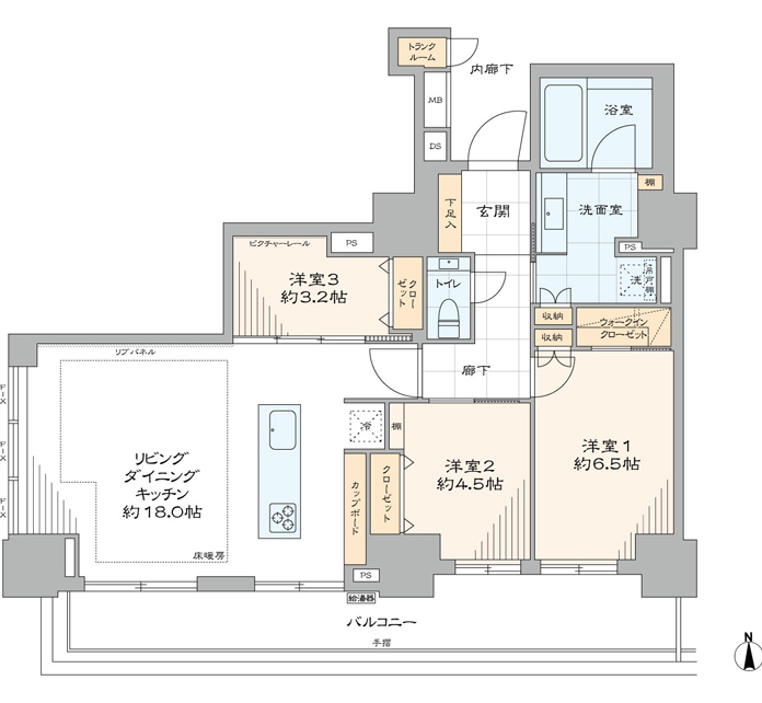
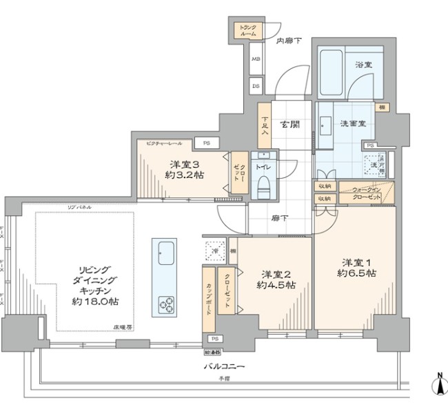
物件概要
リノベーション内容
- 構造鉄筋コンクリート造地下1階地上36階建32階部分
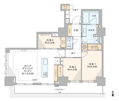
- 間取り3LDK+WIC
- 専有面積78.56㎡(壁芯)
- バルコニー面積18.75 ㎡
- 築年月2019(平成31年)年2月
- 総戸数361戸
- 土地権利所有権
- 用途地域商業地域
- 現況空室
- 引渡日即可
- 駐車場空有(41,000円~42,000円/月)※
- ペット飼育可(小型犬・猫(成長時40cm以下かつ10kg以下)、計2匹まで、細則有)
- 事務所使用不可
- 管理費29,000円/月
- 修繕積立金15,170円/月
- 管理形態全部委託管理(日勤)
- 管理会社㈱東京建物アメニティサポート
- 施工会社三井住友建設㈱
- 旧分譲会社東京建物㈱
- 設備都市ガス・公営水道・本下水・EV・宅配ボックス・オートロック
- 備考駐輪場:空有(400円/月) ・ バイク置場:空無(3,000円/月)
インターネット(㈱つなぐネットコミュニケーションズ)
CATV(㈱ジェイコム東京すみだ・台東)
修繕積立金総額:359,363,404円(2025年7月現在)
固定資産税・都市計画税:271,134円(2025年度概算)
そ の 他 : 1,525円/月(町会費150円・インターネット料1,375円)
・専有面積には、トランクルーム0.58m²含む
※駐車場サイズ:W1850×H1750×L5050以下
W1850×H2100×L5050以下 - 修繕履歴
- フローリング新規貼替
- 壁・天井クロス新規貼替
- 建具・玄関収納等新規交換
- TOTO製洗面化粧台新規交換
- TOTO製洗浄便座付トイレ新規交換
- TOTO製ユニットバス新規交換(浴室換気乾燥機付)
- EIDAI製システムキッチン新規交換(食器洗い機付)
- 田中工藝製カップボード新規交換
- 照明器具新規設置
- エアコン一基新規設置
- 床暖房マット新規交換(LD)
- 給湯器新規交換(追焚式)…等
Google Maps Loading...
- 所在地 : 東京都台東区池之端1-4-33
- 交通 : 東京メトロ千代田線『湯島』駅徒歩5分
東京メトロ銀座線『上野広小路』駅徒歩9分
JR山手線・他『上野』駅徒歩12分
自宅からバーチャル内覧会を開催中です。
オンラインで物件をご案内します。
オンラインで物件をご案内します。
お電話での問い合わせ(10:00-19:00)











































