ディアパーク市ヶ谷南町 503号室|東京都新宿区
物件の価値を磨き上げた
リノベーション住宅
リノベーション住宅
ディアパーク市ヶ谷南町 503号室
価格19,990万円
月額ローンのシミュレーション
自宅からバーチャル内覧会を開催中です。
オンラインで物件をご案内します。
オンラインで物件をご案内します。
お電話での問い合わせ(10:00-19:00)
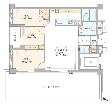
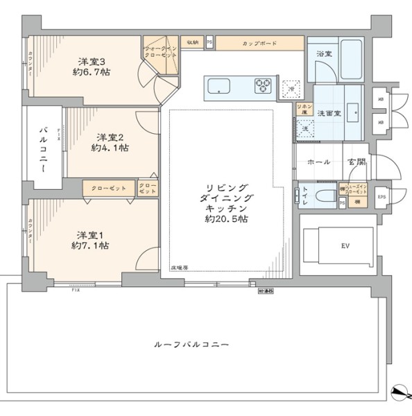
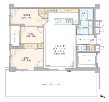
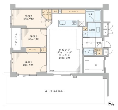
物件概要
リノベーション内容
- 構造鉄筋コンクリート造地下1階地上5階建5階部分
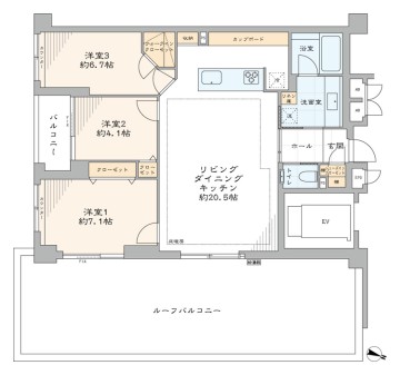
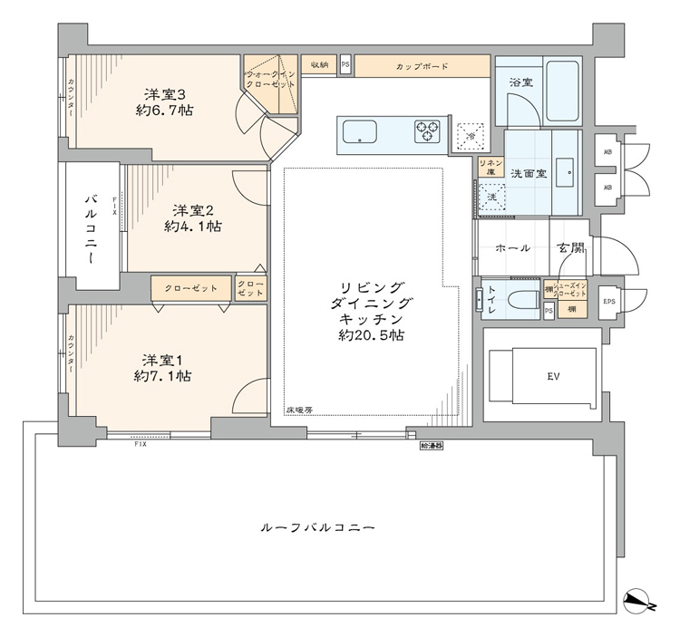
- 間取り3LDK+WIC
- 専有面積78.74㎡(壁芯)
- バルコニー面積3.77 ㎡
- 築年月1997(平成9)年2月
- 総戸数26戸
- 土地権利所有権
- 用途地域第一種中高層住居専用地域
- 現況空室
- 引渡日即可
- 駐車場空有(36,000円/月・2台目以降24,000円/月)
- ペット飼育不可
- 事務所使用不可
- 管理費14,970円/月
- 修繕積立金24,400円/月
- 管理形態全部委託管理(日勤)
- 管理会社㈱サニーライフ
- 施工会社三菱建設㈱
- 旧分譲会社三菱建設㈱
- 設備都市ガス・公営水道・本下水・エレベーター・オートロック
- 備考駐輪場:空有(300円~500円/月)
インターネット(NTTBフレッツ)
トランクルーム:空無(1,000円/月)
楽器演奏:可(細則有)
修繕積立金総額:55,261,578円(2025年3月現在)
固定資産税・都市計画税:225,300円(2025年度概算)
そ の 他 : 1,400円/月(ルーフバルコニー使用料) - 修繕履歴2020年11月 インターフォン交換改修工事実施
2014年 5月 大規模修繕工事実施
- フローリング新規貼替
- 壁・天井クロス新規貼替
- 給水管・給湯管新規交換(専有部)
- 建具新規交換
- オリジナル洗面化粧台新規交換
- LIXIL製洗浄便座付トイレ新規交換
- LIXIL製ユニットバス新規交換(浴室換気乾燥機付)
- オリジナルシステムキッチン新規交換(食器洗い機付)
- 照明器具新規設置
- エアコン1基新規設置
- 床暖房マット新規設置(LD)
- 給湯器新規交換(追焚式)…等
Google Maps Loading...
- 所在地 : 東京都新宿区南町14
- 交通 : 都営大江戸線『牛込神楽坂』駅徒歩7分
東京メトロ東西線『神楽坂』駅徒歩11分
JR中央・総武線『飯田橋』駅徒歩13分
東京メトロ南北線『市ヶ谷』駅徒歩9分
自宅からバーチャル内覧会を開催中です。
オンラインで物件をご案内します。
オンラインで物件をご案内します。
お電話での問い合わせ(10:00-19:00)











































