武蔵新城デュープレックス 401号室|神奈川県川崎市
物件の価値を磨き上げた
リノベーション住宅
リノベーション住宅
武蔵新城デュープレックス 401号室
オープンルーム
価格6,990万円
月額ローンのシミュレーション
オープンルーム
開催中
開催中
【開催日時】1/17(土)、1/18(日)10:00~18:00 ※予約可能枠として11:00~、13:00~、15:00~、17:00~がございます。
ご希望の方は、ビデオ通話での内見が可能です。
自宅からバーチャル内覧会を開催中です。
オンラインで物件をご案内します。
オンラインで物件をご案内します。
お電話での問い合わせ(10:00-19:00)
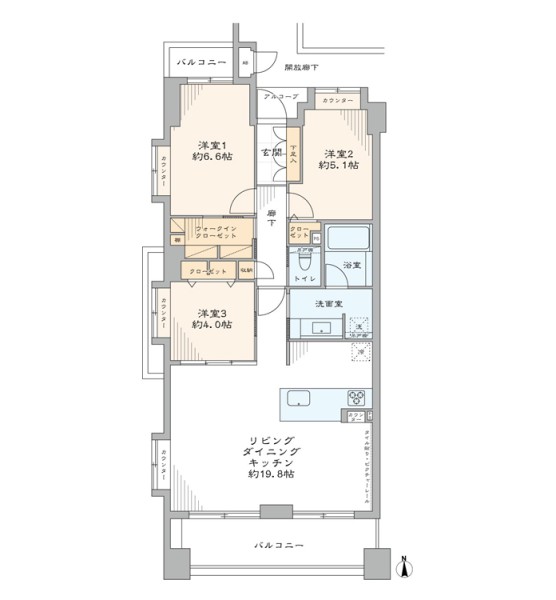
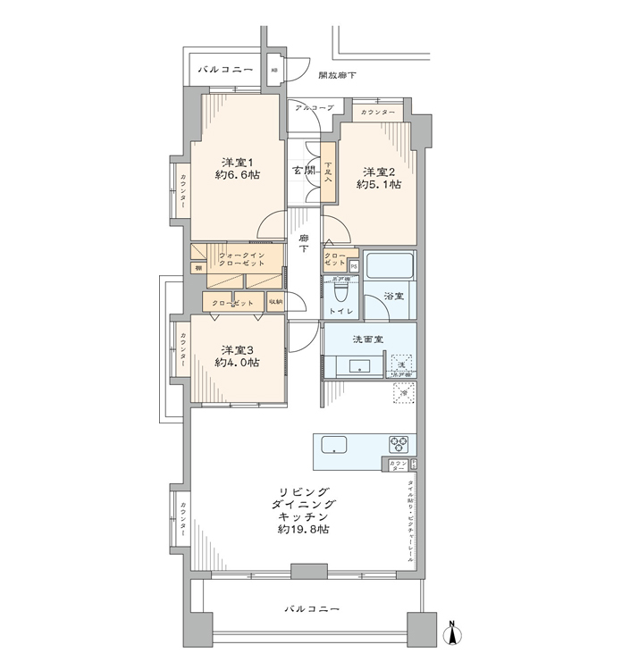
物件概要
リノベーション内容
- 構造鉄筋コンクリート造地上5階建4階部分
- 間取り3LDK+WIC
- 専有面積78.72㎡(壁芯)
- バルコニー面積12.66 ㎡
- 築年月1996(平成8)年9月
- 総戸数27戸
- 土地権利所有権
- 用途地域第二種住居地域
- 現況空室
- 引渡日即可
- 駐車場空無(18,000円/月)
- ペット飼育不可
- 事務所使用不可
- 管理費16,700円/月
- 修繕積立金26,970円/月
- 管理形態全部委託管理(日勤)
- 管理会社三菱地所コミュニティ㈱
- 施工会社古久根建設㈱
- 旧分譲会社㈱リテック・コンサルタンツ
- 設備都市ガス・公営水道・本下水・EV・オートロック・宅配ボックス
- 備考アルコーブ面積 : 1.25m²
駐輪場:空有(500円~1,000円/月)
バイク置場:空無(3,000円/月)原付のみ
インターネット(NTT光配線(FTTH)、Bフレッツマンションタイプ(VDSL))
CATV(イッツコム)
修繕積立金総額:24,576,946円(2024年9月現在)
固定資産税・都市計画税:160,317円(2025年度概算) - 修繕履歴2022年7月 大規模修繕工事
2021年2月 共用照明LED化工事
2019年2月 インターホン設備更新工事
- フローリング新規貼替
- 壁・天井クロス新規貼替
- 給水管・給湯管新規交換(専有部)
- 建具・玄関収納等新規交換
- LIXIL製洗面化粧台新規交換
- TOTO製洗浄便座付トイレ新規交換
- TOTO製ユニットバス新規交換(浴室換気乾燥機付)
- LIXIL製システムキッチン新規交換(食器洗い機付)
- 照明器具新規設置
- エアコン一基新規設置
- 給湯器新規交換(追焚式)…等
Google Maps Loading...
- 所在地 : 神奈川県川崎市中原区下新城1-6-19
- 交通 : JR南武線『武蔵中原』駅徒歩9分
自宅からバーチャル内覧会を開催中です。
オンラインで物件をご案内します。
オンラインで物件をご案内します。
お電話での問い合わせ(10:00-19:00)











































