アステシオ御影 402号室|兵庫県神戸市
物件の価値を磨き上げた
リノベーション住宅
リノベーション住宅
アステシオ御影 402号室
価格11,990万円
月額ローンのシミュレーション
物件概要
リノベーション内容
- 構造鉄筋コンクリート造地下1階地上5階建4・5階部分
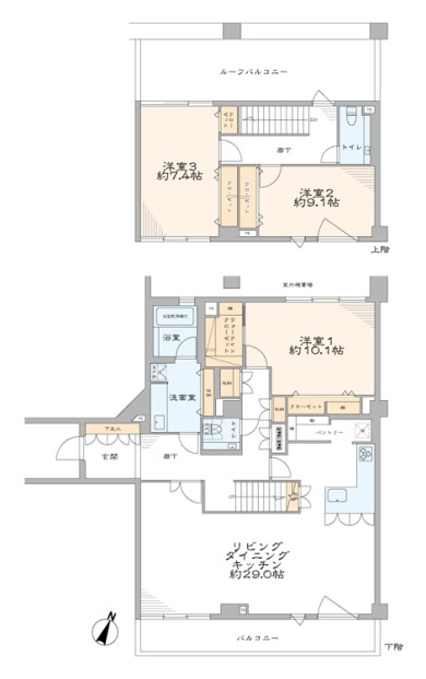
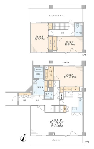
- 間取り3LDK+WIC
- 専有面積152.35㎡(壁芯)
- バルコニー面積12.23 ㎡
- 築年月1990(平成2)年4月
- 総戸数18戸
- 土地権利所有権
- 用途地域第一種住居地域
- 現況空室
- 引渡日即可
- 駐車場駐車場専用使用権付(15,000円/月)
- ペット飼育不可
- 事務所使用不可
- 管理費61,400円/月
- 修繕積立金36,500円/月
- 管理形態全部委託管理(日勤)
- 管理会社野村不動産パートナーズ㈱
- 施工会社㈱竹中工務店
- 旧分譲会社山一不動産㈱
- 設備都市ガス・公営水道・本下水・エレベーター・オートロック
- 備考駐輪場:空有(無償) ・ バイク置場:無
インターネット(アルテリア・ネットワークス㈱)
CATV(J:COM)
修繕積立金総額:23,563,390円(R7年4月現在)
固定資産税・都市計画税:394,241円(R7年度概算)
※令和9年、令和11年に修繕一時金の徴収の案があります。 - 修繕履歴令和 6年11月 大規模修繕工事
- フローリング新規貼替
- 壁・天井クロス新規貼替
- 建具・玄関収納等新規交換
- TOTO製洗面化粧台新規交換
- TOTO製洗浄便座付タンクレストイレ新規交換
- TOTO製ユニットバス新規交換(浴室換気乾燥機付)
- 田中工藝製システムキッチン新規交換(食器洗い機付)
- 照明器具新規設置※1
- エアコン五基新規設置
- 給湯器新規交換※2…等
- ※1シーリングは、販売には含まれません
- ※2給湯器の新規交換は設備の納品後になります
Google Maps Loading...
- 所在地 : 兵庫県神戸市東灘区御影郡家2-5-6
- 交通 : 阪急神戸線『御影』駅徒歩5分
JR東海道線『住吉』駅徒歩12分
自宅からバーチャル内覧会を開催中です。
オンラインで物件をご案内します。
オンラインで物件をご案内します。
お電話での問い合わせ(10:00-19:00)
神戸市の物件
-
- ファミール・グラン神戸北野ザ・クラブハウス
3LDK/ 110.96㎡/兵庫県神戸市中央区山本通3-17-1
- ファミール・グラン神戸北野ザ・クラブハウス
-
- ローレル・トアスクエア
3LDK+WIC・SIC/ 91.31㎡/兵庫県神戸市中央区中山手通2-4-15
- ローレル・トアスクエア
-
- ハーティネス・トアロード中山手
3LDK+WIC+SIC/ 110.74㎡/兵庫県神戸市中央区中山手通3-7-30
- ハーティネス・トアロード中山手
-
- エルザ御影平野A棟
4LDK+3WIC・SIC/ 150.88㎡/兵庫県神戸市東灘区御影2-26-12
- エルザ御影平野A棟








































