シャリエ横浜ベイグランデ 302号室|神奈川県横浜市
物件の価値を磨き上げた
リノベーション住宅
リノベーション住宅
シャリエ横浜ベイグランデ 302号室
価格7,880万円
月額ローンのシミュレーション
自宅からバーチャル内覧会を開催中です。
オンラインで物件をご案内します。
オンラインで物件をご案内します。
お電話での問い合わせ(10:00-19:00)
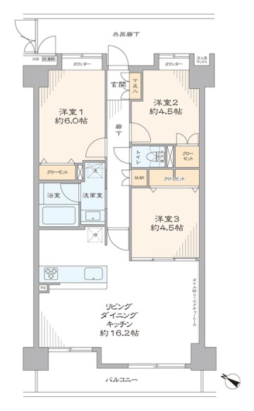
物件概要
リノベーション内容
- 構造鉄骨鉄筋コンクリート造地下1階地上11階建3階部分
- 間取り3LDK
- 専有面積68.61㎡(壁芯)
- バルコニー面積7.93 ㎡
- 築年月1997(平成9)年3月
- 総戸数95戸
- 土地権利所有権
- 用途地域商業地域
- 現況空室
- 引渡日即可
- 駐車場空有(21,000円~26,000円/月)
- ペット飼育可(1匹・成長時体長50㎝以内・規約有)
- 事務所使用不可
- 管理費6,660円/月
- 修繕積立金16,130円/月
- 管理形態全部委託管理(日勤)
- 管理会社東洋コミュニティサービス㈱
- 施工会社㈱熊谷組北関東支店
- 旧分譲会社東レ建設㈱・蝶理不動産㈱
- 設備都市ガス・公営水道・本下水・EV・オートロック・宅配ボックス
- 備考バイク置場:空有(2,000円~2,500円/月)
駐輪場:空有(1,400円/年)
CATV(J:COM)
インターネット(NTT(VDSL方式・光ファイバー方式)・KDDI)
修繕積立金総額:183,475,000円(2025年2月現在)
固定資産税・都市計画税:108,222円(2025年度概算) - 修繕履歴
- フローリング新規貼替
- 壁・天井クロス新規貼替
- 排水管・給湯管新規交換(専有部)
- 建具・玄関収納等新規交換
- Panasonic製洗面化粧台新規交換
- TOTO製洗浄便座付トイレ新規交換
- TOTO製ユニットバス新規交換(浴室換気乾燥機付)
- LIXIL製システムキッチン新規交換(食器洗い機付)
- 照明器具新規設置
- エアコン二基新規設置
- 給湯器新規交換(追焚式)…等
Google Maps Loading...
- 所在地 : 神奈川県横浜市西区戸部町6-207-1
- 交通 : JR東海道線・他『横浜』駅徒歩11分
ブルーライン『高島町』駅徒歩2分
京浜急行線『戸部』駅徒歩6分
みなとみらい線『新高島』駅徒歩14分
みなとみらい線『みなとみらい』駅徒歩14分
自宅からバーチャル内覧会を開催中です。
オンラインで物件をご案内します。
オンラインで物件をご案内します。
お電話での問い合わせ(10:00-19:00)










































