パークハウス市谷仲之町 408号室|東京都新宿区
物件の価値を磨き上げた
リノベーション住宅
リノベーション住宅
パークハウス市谷仲之町 408号室
価格21,980万円
月額ローンのシミュレーション
自宅からバーチャル内覧会を開催中です。
オンラインで物件をご案内します。
オンラインで物件をご案内します。
お電話での問い合わせ(10:00-19:00)
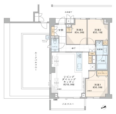
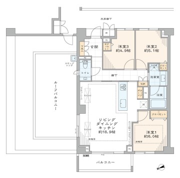
物件概要
リノベーション内容
- 構造鉄筋コンクリート造地下1階地上5階建4階部分
- 間取り3LDK
- 専有面積79.21㎡(壁芯)
- バルコニー面積6.90 ㎡
- 築年月2004(平成16)年10月
- 総戸数47戸
- 土地権利所有権
- 用途地域第二種中高層住居専用地域
- 現況空室
- 引渡日即可
- 駐車場空無(38,000円/月)※1
- ペット飼育可(成長時体長70cmかつ体重10kg以内犬猫の小動物2匹または小鳥2籠まで・細則有)
- 事務所使用不可
- 管理費16,200円/月
- 修繕積立金28,000円/月
- 管理形態全部委託管理(日勤)
- 管理会社三菱地所コミュニティ㈱
- 施工会社戸田建設㈱
- 旧分譲会社三菱地所㈱
- 設備都市ガス・公営水道・本下水・EV・オートロック・宅配ボックス
- 備考バイク置場:無
駐輪場:1台空有(200~400円/月
1住戸につき1台借りられます)2026.3.26現在
インターネット(スカパーJSAT・つなぐネット(e-mansion))
CATV(スカパーJSAT)
トランクルーム:空有(1,450円~2,950円/月)
修繕積立金総額:112,254,305円(2025年8月末現在)
固定資産税・都市計画税:232,469円(2025年度概算)
ルーフバルコニー面積 : 26.64m²
そ の 他 : 4,685円/月(ルーフバルコニー使用料800円・町会費負担金200円
ホームセキュリティ料1,650円・インターネット1,870円・共視聴設備利用料165円)
※1 現在空き無しですが、外部貸し区画が約3か月程度待てば利用可 - 修繕履歴2025年 5月 万年塀撤去、目隠しフェンス設置工事
2024年 3月 屋上防水改修工事(足場不要範囲)
2023年 7月 吸排気弁交換工事・自動ドア装置更新工事
- フローリング新規貼替
- 給湯管新規交換(専有部)
- 壁・天井クロス新規貼替
- 建具・玄関収納等新規交換
- LIXIL製洗浄便座付トイレ新規交換
- 田中工藝製オリジナル洗面化粧台新規交換
- LIXIL製ユニットバス新規交換(浴室換気乾燥機付)
- 田中工藝製オリジナルシステムキッチン新規交換(食器洗い機付)
- 床暖房マット新規設置(LD・洋室1)
- 照明器具新規設置
- エアコン4基新規設置
- 給湯器新規交換(追焚式)…等
Google Maps Loading...
- 所在地 : 東京都新宿区市谷仲之町2-7
- 交通 : 都営新宿線『曙橋』駅徒歩3分
東京メトロ丸ノ内線『四谷三丁目』駅徒歩10分
都営大江戸線『牛込柳町』駅徒歩11分
自宅からバーチャル内覧会を開催中です。
オンラインで物件をご案内します。
オンラインで物件をご案内します。
お電話での問い合わせ(10:00-19:00)










































