ライオンズシティ武蔵小杉 601号室|神奈川県川崎市

リノコレ
物件の価値を磨き上げた
リノベーション住宅

ライオンズシティ武蔵小杉 601号室

価格10,180万円
月額ローンの
シミュレーション
月々のお支払い/297,395円 頭金/ 0円
  • ローンの目安268,325円/月
  • 管理費12,900円/月
  • 修繕積立金15,940円/月
  • その他費用230円/月

※ローンの目安は、借入年数35年、変動金利0.590%を想定。

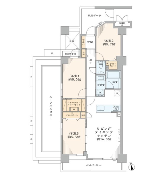
  • 角部屋・ルーフバルコニー付
  • 専有面積70m²の収納豊富な3LDK
  • 約6m²の専用ポーチ付
  • 所在地 : 神奈川県川崎市中原区今井南町27-15
  • 交通 : 東急東横線・JR南武線『武蔵小杉』駅徒歩7分
    JR横須賀線『武蔵小杉』駅徒歩13分
  • 間取り : 3LDK+WIC
  • 専有面積 : 70.86 ㎡

当物件を
スマホで
チェック!!

  • 2駅利用可能
  • CATV導入済み
  • オートロック
  • ルーフバルコニー
  • 光ファイバー導入済
    (共用部まで)
  • 宅配ボックス
  • 眺望良好
  • 角部屋
  • 買物便利
  • 駐輪場
  • 外観写真

    外観写真

自宅からバーチャル内覧会を開催中です。
オンラインで物件をご案内します。
中国語対応可能です。
WeChatでのお問い合わせはこちらから↓
歡迎中文資訊、微信資訊
中国語対応可能です。
WeChatでのお問い合わせは
QRコードから
歡迎中文資訊、微信資訊

お電話での問い合わせ(10:00-19:00)

物件概要

リノベーション内容

  • 構造
    鉄筋コンクリート造地上7階建6階部分

  • 間取り
    3LDK+WIC

  • 専有面積
    70.86㎡(壁芯)

  • バルコニー面積
    7.64 ㎡

  • 築年月
    1998(平成10)2年2月

  • 総戸数
    45戸

  • 土地権利
    所有権

  • 用途地域
    近隣商業地域

  • 現況
    空室

  • 引渡日
    即可

  • 駐車場
    空無(15,000円~20,000円/月)

  • ペット飼育
    不可

  • 事務所使用
    不可

  • 管理費
    12,900円/月

  • 修繕積立金
    15,940円/月

  • 管理形態
    全部委託管理(日勤)

  • 管理会社
    ㈱大京アステージ

  • 施工会社
    東レ建設㈱・㈱ナカノコーポレーション

  • 旧分譲会社
    ㈱大京

  • 設備
    都市ガス・公営水道・本下水・EV・オートロック・宅配ボックス

  • 備考
    ルーフバルコニー : 15.12m²
    ポーチ面積 : 6.72m²
    駐輪場:空有(600円~2,400円/年)
    バイク置場:空無(2,000円/月)
    インターネット(NTT・U-NEXT)
    CATV(イッツコム)
    修繕積立金総額:98,214,828円(2025年12月現在)
    固定資産税・都市計画税:135,341円(2025年度概算)
    そ の 他 : 230円/月(ルーフバルコニー使用料)

  • 修繕履歴
    2026年1月 大規模修繕工事
    2016年 インターホン改修工事・鉄部塗装工事

  • フローリング新規貼替
  • 壁・天井クロス新規貼替
  • 給水管・給湯管新規交換(専有部)
  • 建具・玄関収納等新規交換
  • LIXIL製洗面化粧台新規交換
  • TOTO製洗浄便座付トイレ新規交換
  • TOTO製ユニットバス新規交換(浴室換気乾燥機付)
  • LIXIL製システムキッチン新規交換(食器洗い機付)
  • 給湯器新規交換(追焚式)
  • 照明器具新規設置
  • エアコン1基新規設置…等
Google Maps Loading...
  • 所在地 : 神奈川県川崎市中原区今井南町27-15
  • 交通 : 東急東横線・JR南武線『武蔵小杉』駅徒歩7分
    JR横須賀線『武蔵小杉』駅徒歩13分
自宅からバーチャル内覧会を開催中です。
オンラインで物件をご案内します。
中国語対応可能です。
WeChatでのお問い合わせはこちらから↓
歡迎中文資訊、微信資訊
中国語対応可能です。
WeChatでのお問い合わせは
QRコードから
歡迎中文資訊、微信資訊

お電話での問い合わせ(10:00-19:00)

よく見られている物件