運命のリノベーション
物件と出会える場所
物件と出会える場所
[過去取扱物件]
リビングより隅田川を一望
- 所在地 : 東京都江東区
- 交通 : 都営大江戸線『森下』駅徒歩5分
JR総武線『両国』駅徒歩12分
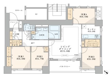
東京メトロ半蔵門線『水天宮前』駅徒歩13分 - 間取り : 4LDK+WIC・SIC
- 専有面積 : 94.37 ㎡
- 2駅利用可能
- CATV導入済み
- TVモニター付インターフォン
- オートロック
- トイレ新規交換
- ペット飼育可
- 公園至近
- 宅配ボックス
- 床暖房
- 浴室換気乾燥機
- 眺望良好
- 角部屋
- 食器洗い機
- 駐輪場
物件概要
リノベーション内容
- 構造鉄筋コンクリート造地下2階地上24階建2階部分
- 間取り4LDK+WIC・SIC
- 専有面積94.37㎡(壁芯)
- バルコニー面積7.91 ㎡
- 土地権利所有権
- 用途地域準工業地域
- 駐車場空無(21,000円~26,000円/月)
- ペット飼育可(規約有)
- 事務所使用不可
- フローリング新規貼替
- 給水管・給湯管新規交換(専有部)
- 建具・玄関収納等新規交換
- LIXIL製洗面化粧台新規交換
- TOTO製洗浄便座付トイレ新規交換
- TOTO製ユニットバス新規交換(浴室換気乾燥機付)
- LIXIL製システムキッチン新規交換(食器洗い機付)
- 壁・天井クロス新規貼替
- 照明器具新規設置
- エアコン一基新規設置
- 給湯器新規交換(追焚式)…等










































