運命のリノベーション
物件と出会える場所
物件と出会える場所
[過去取扱物件]
徒歩10分圏内に5路線が揃う好立地
- 所在地 : 東京都墨田区
- 交通 : JR中央総武緩行線『両国』駅徒歩7分
JR総武快速線『馬喰町』駅徒歩9分
都営浅草線『東日本橋』駅徒歩9分
都営大江戸線・都営新宿線『森下』駅徒歩10分
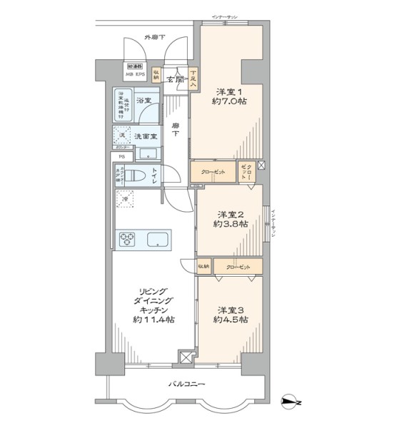
JR中央総武緩行線・都営浅草線『浅草橋』駅徒歩11分 - 間取り : 3LDK
- 専有面積 : 61.92 ㎡
- 2駅利用可能
- CATV導入済み
- TVモニター付インターフォン
- トイレ新規交換
- ペット飼育可
- 光ファイバー導入済
(共用部まで) - 浄水器
- 浴室換気乾燥機
- 眺望良好
- 緑多い住環境
- 角部屋
- 食器洗い機
- 駐輪場
物件概要
リノベーション内容
- 構造鉄骨鉄筋コンクリート造地上14階建3階部分
- 間取り3LDK
- 専有面積61.92㎡(壁芯)
- バルコニー面積7.23 ㎡
- 土地権利所有権
- 用途地域商業地域
- 駐車場空無(30,000円~35,000円/月)
- ペット飼育原則小動物、猫程度のみ可(犬は不可)
- 事務所使用不可
- フローリング新規貼替
- 給水管・給湯管新規交換(専有部)
- 建具・玄関収納等新規交換
- Panasonic製洗面化粧台新規交換
- TOTO製洗浄便座付トイレ新規交換
- TOTO製ユニットバス新規交換(浴室換気乾燥機付)
- LIXIL製システムキッチン新規交換(食器洗浄乾燥機付)
- 壁・天井クロス新規貼替
- 照明器具新規設置
- エアコン一基新規設置
- 給湯器新規交換(追焚式)
- TVモニター付インターホン新規交換…等











































