運命のリノベーション
物件と出会える場所
物件と出会える場所
[過去取扱物件]
海岸まで徒歩3分(約200m)の好立地
- 所在地 : 神奈川県茅ケ崎市
- 交通 : JR東海道本線『辻堂』駅
・バス11分『汐見台』徒歩2分
・バス8分『富士見町』徒歩9分
JR東海道本線『茅ヶ崎』駅
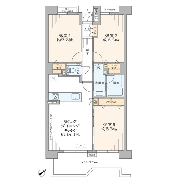
・バス12分『富士見町』徒歩9分 - 間取り : 3LDK
- 専有面積 : 73.51 ㎡
- 2駅利用可能
- CATV導入済み
- TVモニター付インターフォン
- オートバス
- オートロック
- トイレ新規交換
- バス停至近
- ペット飼育可
- 光ファイバー導入済
(共用部まで) - 宅配ボックス
- 浄水器
- 浴室換気乾燥機
- 眺望良好
- 緑多い住環境
- 食器洗い機
- 駐車場
- 駐輪場
物件概要
リノベーション内容
- 構造鉄骨鉄筋コンクリート造地上14階建4階部分
- 間取り3LDK
- 専有面積73.51㎡(壁芯)
- バルコニー面積10.83 ㎡
- 土地権利所有権
- 用途地域準住居地域
- 駐車場空有(7,500円~11,000円/月)
- ペット飼育可(規約有)
- 事務所使用不可
- フローリング新規貼替
- 給水管・給湯管新規交換(専有部)
- 建具・玄関収納等新規交換
- LIXIL製洗面化粧台新規交換
- TOTO製洗浄便座付トイレ新規交換
- TOTO製ユニットバス新規交換(浴室換気乾燥機付)
- LIXIL製システムキッチン新規交換(食器洗浄乾燥機付)
- 壁・天井クロス新規貼替
- 照明器具新規設置
- エアコン一基新規設置
- 給湯器新規交換(追焚式)…等











































