運命のリノベーション
物件と出会える場所
物件と出会える場所
[過去取扱物件]
湘南の風を纏う邸宅・海まで徒歩5分
- 所在地 : 神奈川県藤沢市
- 交通 : 小田急江ノ島線『片瀬江ノ島』駅徒歩4分
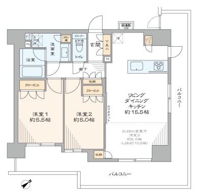
江ノ島電鉄『江ノ島』駅徒歩10分 - 間取り : 2LDK
- 専有面積 : 60.36 ㎡
- 2駅利用可能
- CATV導入済み
- オートロック
- トイレ新規交換
- ペット飼育可
- 両面バルコニー
- 光ファイバー導入済
(共用部まで) - 宅配ボックス
- 浴室換気乾燥機
- 緑多い住環境
- 食器洗い機
- 駅近
- 駐輪場
物件概要
リノベーション内容
- 構造鉄筋コンクリート造地上9階建2階部分
- 間取り2LDK
- 専有面積60.36㎡(壁芯)
- バルコニー面積23.60 ㎡
- 土地権利所有権
- 用途地域商業地域
- 駐車場空無(15,000円~16,000円/月)
- ペット飼育可(使用細則有)
- 事務所使用不可
- TOTO製洗浄便座付トイレ新規交換
- コンロ新規交換
- 食器洗浄乾燥機新規交換
- 壁・天井クロス新規貼替
- 照明器具一部新規交換
- エアコン一基新規設置…等









































