運命のリノベーション
物件と出会える場所
物件と出会える場所
[過去取扱物件]
「由比ガ浜海岸」目の前の低層レジデンス
- 所在地 : 神奈川県鎌倉市
- 交通 : 江ノ島電鉄『由比ガ浜』駅徒歩6分
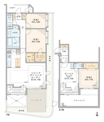
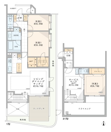
JR横須賀線『鎌倉』駅徒歩21分 - 間取り : 3SLDK+WIC
- 専有面積 : 129.63 ㎡
- 2駅利用可能
- CATV導入済み
- オートロック
- トイレ新規交換
- ペット飼育可
- 光ファイバー導入済
(共用部まで) - 公園至近
- 宅配ボックス
- 床暖房
- 浴室換気乾燥機
- 角部屋
- 食器洗い機
- 駐車場
- 駐輪場
物件概要
リノベーション内容
- 構造鉄筋コンクリート造地下1階地上3階建1階部分
- 間取り3SLDK+WIC
- 専有面積129.63㎡(壁芯)
- バルコニー面積22.77 ㎡
- 土地権利所有権
- 用途地域近隣商業地域・第二種住居地域
- 駐車場空無(15,000円/月)
- ペット飼育可(規約有)
- 事務所使用不可
- フローリング新規貼替
- 建具・玄関収納等新規交換
- LIXIL製洗面化粧台新規交換
- TOTO製洗浄便座付トイレ新規交換
- 壁・天井クロス新規貼替
- 照明器具新規設置
- エアコン一基新規設置
- 給湯器新規交換(追焚式)
- TOTO製ユニットバス新規交換(浴室換気乾燥機付)
- LIXIL製システムキッチン新規交換(食器洗い機付)
- 床暖房マット新規交換(LD・SR・洋室3)…等










































