運命のリノベーション
物件と出会える場所
物件と出会える場所
[過去取扱物件]
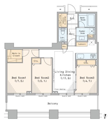
総戸数1095戸・48階建のタワーレジデンス
- 所在地 : 東京都港区
- 交通 : JR山手線・JR京浜東北線『田町』駅徒歩12分
都営三田線・都営浅草線『三田』駅徒歩15分
ゆりかもめ『芝浦ふ頭』駅徒歩15分 - 間取り : 3LDK+WIC・SIC
- 専有面積 : 67.50 ㎡
- 24時間有人管理
- 2駅利用可能
- CATV導入済み
- TVモニター付インターフォン
- オートロック
- トイレ新規交換
- ペット飼育可
- 光ファイバー導入済
(共用部まで) - 宅配ボックス
- 床暖房
- 浴室換気乾燥機
- 眺望良好
- 食器洗い機
- 駐車場
- 駐輪場
物件概要
リノベーション内容
- 構造鉄筋コンクリート造地下1階地上48階建22階部分
- 間取り3LDK+WIC・SIC
- 専有面積67.50㎡(壁芯)
- バルコニー面積19.66 ㎡
- 土地権利所有権
- 用途地域第二種住居地域
- 駐車場空有(24,000~38,000円/月)
- ペット飼育可(飼育使用細則有)
- 事務所使用不可
- フローリング新規貼替
- 建具・玄関収納等新規交換
- LIXIL製洗面化粧台新規交換
- TOTO製洗浄便座付トイレ新規交換
- TOTO製ユニットバス新規交換(浴室換気乾燥機付)
- LIXIL製システムキッチン新規交換(食器洗い機付)
- 壁・天井クロス新規貼替
- 照明器具新規設置
- エアコン一基新規設置
- 床暖房マット新規交換(LD)
- 給湯器新規交換(追焚式)…等










































