運命のリノベーション
物件と出会える場所
物件と出会える場所
[過去取扱物件]
ユナイテッドアローズ社監修リノベーション・北西角部屋
- 所在地 : 東京都渋谷区
- 交通 : 東京メトロ千代田線『代々木公園』駅徒歩10分
小田急小田原線『代々木八幡』駅徒歩9分
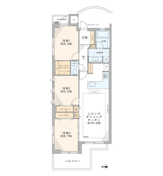
京王線『初台』駅徒歩6分 - 間取り : 3LDK+WIC
- 専有面積 : 76.13 ㎡
- 2駅利用可能
- CATV導入済み
- オートロック
- トイレ新規交換
- トランクルーム
- ペット飼育可
- 光ファイバー導入済
(共用部まで) - 宅配ボックス
- 床暖房
- 角部屋
- 食器洗い機
- 駐車場
- 駐輪場
物件概要
リノベーション内容
- 構造鉄筋コンクリート造地下1階地上3階建2階部分
- 間取り3LDK+WIC
- 専有面積76.13㎡(壁芯)
- バルコニー面積9.45 ㎡
- 土地権利所有権
- 用途地域第一種低層住居専用地域
- 駐車場空有(30,000円~34,000円/月)※1
- ペット飼育可(体高30㎝以下の小型犬・小型猫(成獣時)規約有)
- 事務所使用不可
- フローリング新規貼替
- 給水管・給湯管新規交換(専有部)
- 建具・玄関収納等新規交換
- オリジナル洗面化粧台新規交換
- LIXIL製洗浄便座付トイレ新規交換
- LIXIL製ユニットバス新規交換(浴室換気乾燥機付)
- オリジナルシステムキッチン新規交換(食器洗い機付)
- 壁・天井クロス新規貼替
- 照明器具新規設置
- エアコン1基新規設置
- 床暖房マット新規設置(LD)
- 給湯器新規交換(追焚式)…等











































