グランクール河原町二条 712号室|京都府京都市
物件の価値を磨き上げた
リノベーション住宅
リノベーション住宅
グランクール河原町二条 712号室
価格16,490万円
月額ローンのシミュレーション
物件概要
リノベーション内容
- 構造鉄筋コンクリート造地下1階地上11階建7階部分
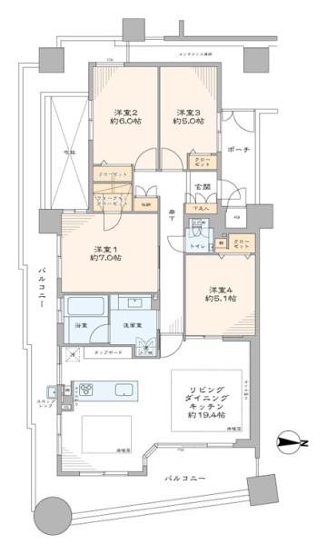
- 間取り4LDK+WIC
- 専有面積93.36㎡(壁芯)
- バルコニー面積36.24 ㎡
- 築年月2001(平成13)年6月
- 総戸数173戸
- 土地権利所有権
- 用途地域商業地域
- 現況空室
- 引渡日即可
- 駐車場空有(3,000円~15,000円/月)
- ペット飼育不可
- 事務所使用不可
- 管理費8,960円/月
- 修繕積立金15,220円/月
- 管理形態全部委託管理(日勤)
- 管理会社日本住宅管理㈱
- 施工会社飛島建設㈱
- 旧分譲会社ニチメン㈱、三交不動産㈱
- 設備都市ガス・公営水道・本下水・EV・オートロック・宅配ボックス
- 備考駐輪場:空有(200~300円/月)
バイク置場:空有(500円~1,000円/月)
インターネット(NTT・KDDI・UCOM)
修繕積立金総額:224,933,443円(R6年7月現在)
固定資産税・都市計画税:167,570円(R7年度概算)
ポーチ面積 : 5.18m²
町 会 費 : 500円/月 - 修繕履歴令和 6年 5月 インターホン改修工事
平成27年 8月 大規模修繕工事
- フローリング新規貼替
- 建具・玄関収納等新規交換
- 壁・天井クロス新規貼替
- LIXIL製洗面化粧台新規交換
- TOTO製洗浄便座付タンクレストイレ新規交換
- TOTO製追焚機能(循環式)付ユニットバス新規交換(浴室換気乾燥機付)
- 照明器具新規設置※1
- 給湯器新規交換
- エアコン一基新規設置
- 床暖房マット新規設置
- TOCLAS製システムキッチン新規交換(食器洗い機付)…等
- ※1シーリングライトは、販売には含まれません
Google Maps Loading...
- 所在地 : 京都府京都市中京区河原町通二条上る清水町341-11
- 交通 : 地下鉄東西線『京都市役所前』駅徒歩6分
京阪本線『三条』駅徒歩8分








































