運命のリノベーション
物件と出会える場所
物件と出会える場所
[過去取扱物件]
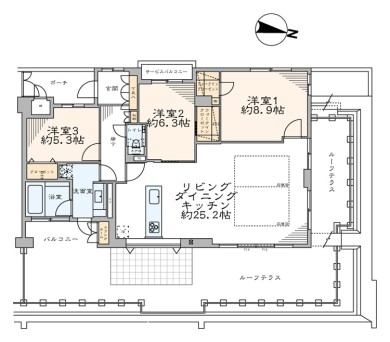
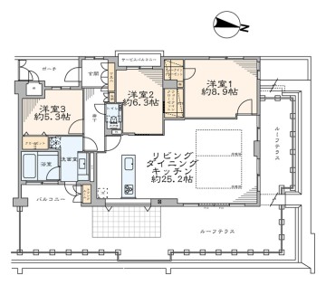
最上階×三方角部屋の開放感溢れる間取り
- 所在地 : 兵庫県芦屋市
- 交通 : JR東海道線『芦屋』駅徒歩5分
阪神本線『芦屋』駅徒歩8分
阪急神戸線『芦屋川』駅徒歩14分 - 間取り : 3LDK+2WIC
- 専有面積 : 100.66 ㎡
- 2駅利用可能
- CATV導入済み
- TVモニター付インターフォン
- オートロック
- トイレ新規交換
- トランクルーム
- ペット飼育可
- ルーフバルコニー
- 両面バルコニー
- 光ファイバー導入済
(共用部まで) - 外観タイル貼
- 宅配ボックス
- 床暖房
- 最上階
- 浄水器
- 浴室換気乾燥機
- 眺望良好
- 緑多い住環境
- 角部屋
- 食器洗い機
- 駐車場
- 駐輪場
物件概要
リノベーション内容
- 構造鉄筋コンクリート造地上8階建8階部分
- 間取り3LDK+2WIC
- 専有面積100.66㎡(壁芯)
- バルコニー面積5.25 ㎡
- 土地権利所有権
- 用途地域近隣商業地域
- 駐車場空有(12,000円~15,000円/月)
- ペット飼育可(ペット飼育に関する細則参照)
- 事務所使用不可
- フローリング新規貼替
- 壁・天井クロス新規貼替
- 建具・玄関収納等新規交換
- LIXIL製洗面化粧台新規交換
- TOTO製洗浄便座付トイレ新規交換
- LIXIL製追焚機能(循環式)付ユニットバス新規交換(浴室換気乾燥機付)
- 照明器具新規設置※1
- 給湯器新規交換
- エアコン二基新規設置
- 床暖房マット新規設置
- TOTO製システムキッチン新規交換(食器洗い機付)…等
- ※1シーリングライトは、販売には含まれません






































