オーダーメイドで実現する
自分だけのリノベーション
自分だけのリノベーション
千代田区のモデルルーム
(パークハウス平河町 1302号室)
[ モデルルーム概要 ]
- 御屋敷町のー千代田区平河町ーアドレス
- 専有面積110m²超・東南角部屋・13階部分
- 2020年大規模修繕工事実施済
- 所在地 : 東京都千代田区平河町1-6-13
- 交通 : 東京メトロ有楽町線『麹町』駅徒歩4分
東京メトロ半蔵門線『半蔵門』駅徒歩4分
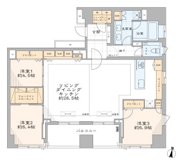
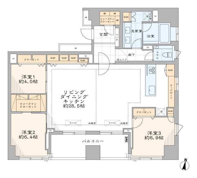
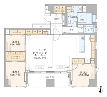
東京メトロ有楽町線・東京メトロ半蔵門線・東京メトロ南北線『永田町』駅徒歩6分 - 間取り : 3LDK+WIC・SIC
- 専有面積 : 111.09 ㎡
- 物件名 : パークハウス平河町 1302号室
- 2駅利用可能
- TVモニター付インターフォン
- オートロック
- トイレ新規交換
- 光ファイバー導入済(共用部まで)
- 宅配ボックス
- 床暖房
- 浴室換気乾燥機
- 角部屋
- 買物便利
- 食器洗い機
- 駅近
営業時間10:30-18:00
定休日火曜日・水曜日
リノベーション内容
- フローリング新規貼替
- 給湯管新規交換(専有部)
- 建具・玄関収納等新規交換
- 田中工藝製洗面化粧台新規交換
- TOTO製洗浄便座付トイレ新規交換
- LIXIL製ユニットバス新規交換(浴室換気乾燥機付)
- 壁・天井クロス新規貼替
- 照明器具新規設置
- エアコン5基新規設置
- 床暖房マット新規交換(LD)
- 給湯器新規交換(追焚式)
- 田中工藝製システムキッチン新規交換(食器洗い機付)…等
Google Maps Loading...
- 所在地 : 東京都千代田区平河町1-6-13
- 交通 : 東京メトロ有楽町線『麹町』駅徒歩4分
東京メトロ半蔵門線『半蔵門』駅徒歩4分
東京メトロ有楽町線・東京メトロ半蔵門線・東京メトロ南北線『永田町』駅徒歩6分
営業時間10:30-18:00
定休日火曜日・水曜日










































