オーダーメイドで実現する
自分だけのリノベーション
自分だけのリノベーション
渋谷区のモデルルーム
(シティコート代々木 415号室)
[ モデルルーム概要 ]
- ー代々木五丁目ーアドレス
- 敷地内に中庭のあるゆとりの低層レジデンス
- 最上階4階部分×3方角部屋 眺望良好
- 所在地 : 東京都渋谷区代々木5-31-5
- 交通 : 小田急小田原線『代々木八幡』駅徒歩8分
東京メトロ千代田線『代々木公園』駅徒歩9分
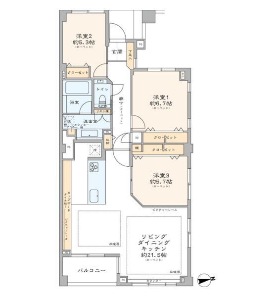
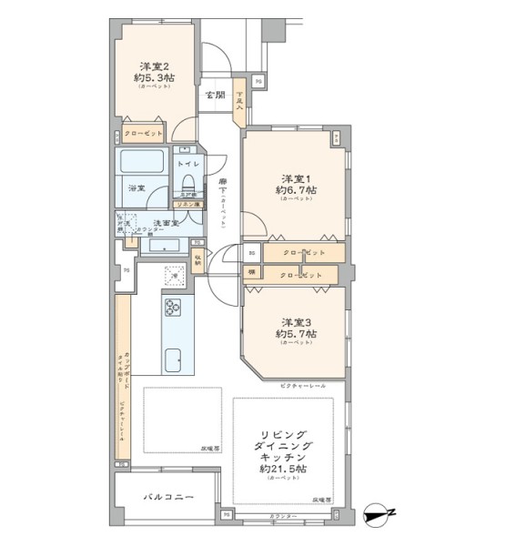
小田急小田原線『参宮橋』駅徒歩10分 - 間取り : 3LDK
- 専有面積 : 92.31 ㎡
- 物件名 : シティコート代々木 415号室
- 2駅利用可能
- CATV導入済み
- オートロック
- トイレ新規交換
- 光ファイバー導入済(共用部まで)
- 公園至近
- 宅配ボックス
- 床暖房
- 最上階
- 浴室換気乾燥機
- 眺望良好
- 角部屋
- 買物便利
- 食器洗い機
- 駐輪場
営業時間10:30-18:00
定休日火曜日・水曜日
リノベーション内容
- カーペット新規貼替
- 壁・天井クロス新規貼替
- 給湯管新規交換(専有部)
- 建具・玄関収納等新規交換
- 田中工藝製洗面化粧台新規交換
- TOTO製洗浄便座付トイレ新規交換
- LIXIL製ユニットバス新規交換(浴室換気乾燥機付)
- 田中工藝製システムキッチン新規交換(食器洗い機付)
- 照明器具新規設置
- エアコン5基新規設置
- 床暖房マット新規設置(LD)
- 給湯器新規交換(追焚式・高温足湯・無)…等
Google Maps Loading...
- 所在地 : 東京都渋谷区代々木5-31-5
- 交通 : 小田急小田原線『代々木八幡』駅徒歩8分
東京メトロ千代田線『代々木公園』駅徒歩9分
小田急小田原線『参宮橋』駅徒歩10分
営業時間10:30-18:00
定休日火曜日・水曜日











































