ローレルタワー梅田 1601号室|大阪府大阪市
物件の価値を磨き上げた
リノベーション住宅
リノベーション住宅
ローレルタワー梅田 1601号室
価格12,490万円
月額ローンのシミュレーション
- 16階部分・北西角住戸
- 谷町線『中崎町』駅徒歩1 分
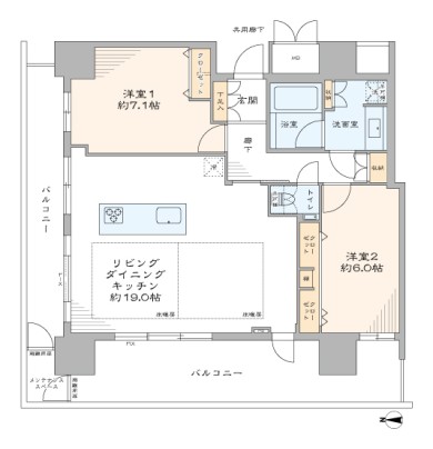
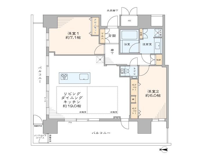
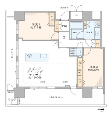
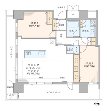
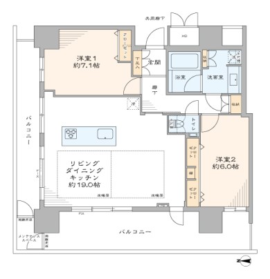
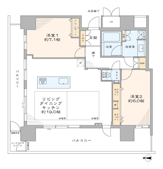
- 専有面積71m²超 ゆとりある2LDK
- 所在地 : 大阪府大阪市北区万歳町5-12
- 交通 : OsakaMetro谷町線『中崎町』駅徒歩1分
阪急神戸・宝塚・京都線『大阪梅田』駅徒歩8分
OsakaMetro御堂筋線『梅田』駅徒歩10分
JR大阪環状線『大阪』駅徒歩11分 - 間取り : 2LDK
- 専有面積 : 71.23 ㎡
当物件を
スマホで
チェック!!
- 24時間有人管理
- 2駅利用可能
- CATV導入済み
- TVモニター付インターフォン
- オートロック
- トイレ新規交換
- ペット飼育可
- 光ファイバー導入済
(共用部まで) - 公園至近
- 外観タイル貼
- 宅配ボックス
- 床暖房
- 浄水器
- 浴室換気乾燥機
- 眺望良好
- 角部屋
- 食器洗い機
- 駅近
- 駐車場
- 駐輪場
物件概要
リノベーション内容
- 構造鉄筋コンクリート造地上38階建16階部分
- 間取り2LDK
- 専有面積71.23㎡(壁芯)
- バルコニー面積25.53 ㎡
- 築年月2008(平成20)年6月
- 総戸数251戸
- 土地権利所有権
- 用途地域商業地域
- 現況空室
- 引渡日即可
- 駐車場空有(26,000円~35,000円/月)
- ペット飼育可(犬・猫合わせて2匹まで、ペット飼育細則あり)
- 事務所使用不可
- 管理費13,770円/月
- 修繕積立金10,270円/月
- 管理形態全部委託管理(日勤)
- 管理会社近鉄住宅管理㈱
- 施工会社㈱フジタ
- 旧分譲会社近鉄不動産㈱
- 設備都市ガス・公営水道・本下水・EV・オートロック・宅配ボックス
- 備考駐輪場:空有(無償) ・ バイク置場:空無(1,000円/月)
インターネット(NTTメディアサプライ・KDDI・NURO光)
CATV(スカパーJSAT)
修繕積立金総額:116,746,757円(R6年11月現在)
固定資産税・都市計画税:167,797円(R7年度概算)
自治会費 : 1,200円/年(毎年7月徴収)
そ の 他 : 1,430円/月※1
※1 その他内訳は近鉄セーフティ24-S(ホームセキュリティ)費用880円、エミットマンションシステム費用550円。その他に居住していない外部区分所有者には協力金として2,000円/年の徴収があります。 - 修繕履歴令和7年3月 インターホン・宅配ロッカー・キーシステム工事
令和6年2月 大規模修繕工事
- フローリング新規貼替
- 壁・天井クロス新規貼替
- 建具・玄関収納等新規交換
- エアコン一基新規設置
- LIXIL製洗面化粧台新規交換
- TOTO製洗浄便座付タンクレストイレ新規交換
- TOTO製追焚機能(循環式)付ユニットバス新規交換(浴室換気乾燥機付)
- LIXIL製システムキッチン新規交換(食器洗い機付)
- 照明器具新規設置※2
- 床暖房マット新規交換
- ディスポーザー新規交換
- ※2シーリングライトは、販売には含まれません
Google Maps Loading...
- 所在地 : 大阪府大阪市北区万歳町5-12
- 交通 : OsakaMetro谷町線『中崎町』駅徒歩1分
阪急神戸・宝塚・京都線『大阪梅田』駅徒歩8分
OsakaMetro御堂筋線『梅田』駅徒歩10分
JR大阪環状線『大阪』駅徒歩11分





































