運命のリノベーション
物件と出会える場所
物件と出会える場所
[過去取扱物件]
46階Premiumフロア 陽当り・眺望良好
- 所在地 : 大阪府大阪市北区
- 交通 : JR東海道本線『大阪』駅徒歩9分
大阪メトロ四ツ橋線『西梅田』駅徒歩4分
JR東西線『北新地』駅徒歩5分
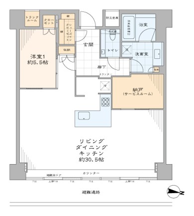
阪神本線『大阪梅田』駅徒歩9分 - 間取り : 1LDK+S(納戸)・SIC
- 専有面積 : 86.33 ㎡
- 2駅利用可能
- CATV導入済み
- IHクッキングヒーター
- TVモニター付インターフォン
- オートロック
- トランクルーム
- ペット飼育可
- 光ファイバー導入済
(共用部まで) - 公園至近
- 外観タイル貼
- 宅配ボックス
- 床暖房
- 浴室換気乾燥機
- 眺望良好
- 築浅
- 食器洗い機
- 駅近
- 駐輪場
物件概要
リノベーション内容
- 構造鉄筋コンクリート造地下1階地上49階建46階部分
- 間取り1LDK+S(納戸)・SIC
- 専有面積86.33㎡(壁芯)
- バルコニー面積不明 ㎡
- 土地権利所有権
- 用途地域商業地域
- 駐車場空無(45,000~98,000円/月)
- ペット飼育可(小型犬及び猫、合わせて2匹まで)
- 事務所使用不可




































