運命のリノベーション
物件と出会える場所
物件と出会える場所
[過去取扱物件]
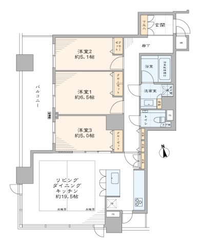
31階建13階部分!大型3LDK
- 所在地 : 大阪府大阪市中央区
- 交通 : 大阪メトロ千日前線・谷町線『谷町九丁目』駅徒歩4分
近鉄大阪線・奈良線・難波線『大阪上本町』駅徒歩4分 - 間取り : 3LDK
- 専有面積 : 86.09 ㎡
- 2駅利用可能
- CATV導入済み
- TVモニター付インターフォン
- オートロック
- トイレ新規交換
- ペット飼育可
- 光ファイバー導入済
(共用部まで) - 公園至近
- 外観タイル貼
- 宅配ボックス
- 床暖房
- 浄水器
- 浴室換気乾燥機
- 眺望良好
- 角部屋
- 買物便利
- 食器洗い機
- 駅近
- 駐車場
- 駐輪場
物件概要
リノベーション内容
- 構造鉄筋コンクリート造地上31階建13階部分
- 間取り3LDK
- 専有面積86.09㎡(壁芯)
- バルコニー面積16.24 ㎡
- 土地権利所有権
- 用途地域商業地域
- 駐車場空有(27,000~38,000円/月)
- ペット飼育可(猫又は犬、1匹のみ)
- 事務所使用不可
- フローリング新規貼替
- 壁・天井クロス新規貼替
- 建具・玄関収納等新規交換
- LIXIL製洗面化粧台新規交換
- TOTO製洗浄便座付トイレ新規交換
- TOTO製追焚機能(循環式)付ユニットバス新規交換(浴室換気乾燥機付)
- 照明器具新規設置※1
- エアコン一基新規設置
- 田中工藝製システムキッチン新規交換(食器洗い機付)…等
- ※1シーリングライトは、販売には含まれません










